Aktuell: Miet-Objekt „Steinbruch 7, 5261 Helpfau-Uttendorf“
(Objekt reserviert)
Exklusives Gewerbeobjekt in Bestlage – Büro, Lager & Parkflächen
Zur Vermietung steht ein hochwertiges, vielseitig nutzbares Gewerbeobjekt in absoluter Toplage direkt an der Bundesstraße. Die hervorragende Verkehrsanbindung sorgt für optimale Erreichbarkeit und maximale Sichtbarkeit Ihres Unternehmens.
Büroflächen
Die repräsentativen Büroflächen erstrecken sich über zwei Geschosse und bieten ein durchdachtes Raumkonzept für effizientes und modernes Arbeiten.
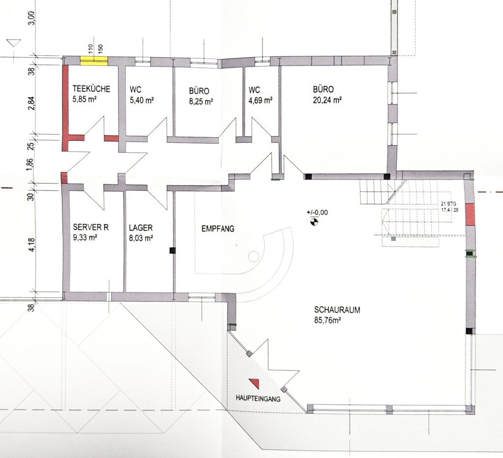
Im Erdgeschoss empfängt ein großzügiger Empfangsbereich Kunden und Geschäftspartner in ansprechender Atmosphäre. Ein separates Chefbüro bietet einen ruhigen, exklusiven Arbeitsbereich für die Geschäftsleitung. Ergänzt wird diese Ebene durch Mitarbeiterbüros, die flexibel nutzbar sind und ausreichend Platz für Teams bieten.
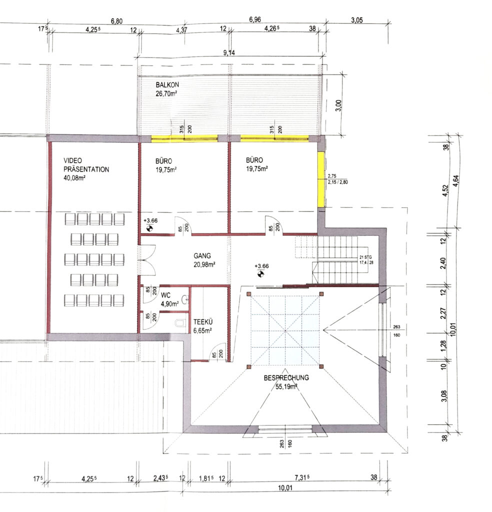
Für interne und externe Meetings stehen ein ausgestatteter Besprechungsraum sowie ein hochwertiger Präsentationsraum im Kino-Stil zur Verfügung, ideal für Schulungen, Produktvorführungen oder Kundenpräsentationen.
Lagerflächen
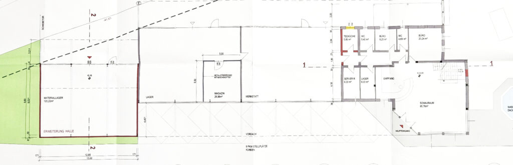
Drei geräumige Hallen (eine davon mit Fußbodenheizung beheizt) bieten eine Lager- und Abstellfläche für Waren aller Art.
Nutzungsmöglichkeiten:
Das Objekt ist bestens geeignet für Werbeagenturen, Architekturbüros sowie aufgrund der hervorragenden Erreichbarkeit und der verkehrsgünstigen Lage auch ideal für Handelsbetriebe, Dienstleister oder vergleichbare gewerbliche Nutzungen.
Das Objekt liegt direkt an der B147 im Ortsgebiet von Uttendorf. Die hervorragende Lage bietet Ihrem Unternehmen eine optimale Sichtbarkeit. Sie erreichen vom Standort aus in kurzer Zeit die Städte Braunau am Inn (15 Min.), Salzburg (45 Min.), Passau (1 Std.), Linz und München (jeweils 1,5 Std.).
Auf dem Grundstück sind Kundenparkplätze sowie eine rückseitige Zufahrt für die Anlieferung von Waren vorhanden.
Optional ist eine Teilung der Mietfläche möglich. Die konkrete Mietpreisgestaltung richtet sich nach Art und Umfang der angemieteten Flächen.
- Empfangsbereich mit Schauraum: 85,76 m²
- Büro- und Besprechungsräume (gesamt): 123 m²
- Video-Präsentationsraum: 40,08 m²
- Balkon: 26,70 m²
- Hallen 1 + 2 (inkl. Magazin): ca. 270 m²
- Halle 3: ca. 114 m²
Erdgeschoss



Obergeschoss






























Kontakt
Über HFK-Objekt
Das Unternehmen HFK-Objekt GmbH wurde 2018 von Helga und Fritz Krotzer gegründet. Das Hauptgeschäftsfeld ist die Vermietung von Gewerbeimmobilien im Bezirk Braunau.


